Property sale experts covering the UK   info@kingslandestates.co.uk

Search Properties

79 Coachwell Close, Telford, TF3 2JE

Telford

£225,000 Offers Over

6 x 6 x 2 x
Department:
Sales
Reference:
79CC
Postcode:
TF3 2JE
Type:
Terraced House
Marketing Flag:
Chain Free, New Instruction
Availability:
Sold STC
Receptions:
2
Tenure:
Freehold

Property features

  • Freehold Property
  • Fully Licenced, 6 Bedroom HMO
  • 6 Bedrooms with En-Suites
  • Gross Rental Income Per Annum of £37,740
  • Spacious Fully Fitted Dining Kitchen
  • Spacious Conservatory
  • Private & Rear Enclosed Garden
  • Fantastic Investment Oppurtunity
  • Close To Several Local Transport Links
  • Close To Several Local Amenities

Summary

Kingsland Estates are delighted to offer to the market this, fantastic investment oppurtunity in the form of this, fully licenced, six bedroom & six bathroom HMO. Situated in the ever popular area of Telford this is a rare oppurtunity for an investor to acquire this investment property in a prime location which is already generating an income and has been operating for over 10 years. The property on offer briefly comprises of an entrance porch allowing for access to a spacious hallway from which you have access to a communal utility room, spacious dining kitchen and large communal conservatory. In addition to this on the ground, first and second floor there are two bedrooms on each floor each complete with their own en-suite shower rooms and all of a very goof size. The property benefits from gas central heating and double glazing throughout the property as well as an enclosed rear garden. Thanks to the ideal positioning of the property it benefits from being a stones throw away from several local transport links and amenities. For further information or to book a viewing, contact a member of our sales team directly.

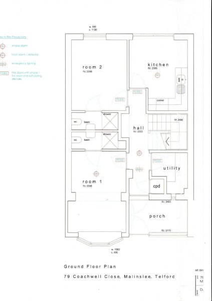
Floor Plans

Request Further Details

Or arrange a viewing

Recent Blog Posts

Latest news and updates

Homes with the Largest Docks in South London 26th April Lettings News

Homes with the Largest Docks in South London

We are an independent, privately owned estate agents and has already established itself as one of the most progressive and…

Read More
The Best Roof Decks in East London 26th April Landlords Sales

The Best Roof Decks in East London

We are an independent, privately owned estate agents and has already established itself as one of the most progressive and…

Read More